HM05

tabella-HM05

 

 

   
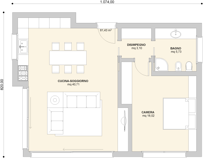
• Pianta Piano Terra    
pianoterra-HM05  

 

 

   
• Prospetto EST   • Prospetto NORD
prospetti1

 

 

   
• Prospetto OVEST    • Prospetto SUD 
prospetti2

 

 

   

Cliccare sull’immagine sottostante per scaricare l’esploso del plastico di questa abitazione:

Plastici