Residenze Via dell'Immacolata

L'intervento immobilare "Residenze Via dell'Immacolata" sostenuto da HM52-Abitazioni Ecologiche è composto da due bifamiliari unite per il posto auto coperto.
La location dell'intervento è in Via dell'Immacolata a Cassola (VI) su strada a senso unico di nuova lottizzazione composta da poche unità immobiliari.
CARATTERISTICHE TECNICHE
• Abitazioni in BioEdilizia a struttura portante in X-Lam Legno Veneto
• CasaClima Classe A
• Pompa di calore per riscaldamento, raffrescamento e acqua calda sanitaria
• Solare termico e solare fotovoltaico (3 kW picco)
• Deumidificazione
• Controllo remoto impianti a mezzo app e tablet 7" incluso
• Serramenti triplovetro con sistema di oscuramento a taparelle motorizzate
Essendo l'impianto di climatizzazione delle abitazioni basato su pompa di calore l'allacciamento gas non è necessario.
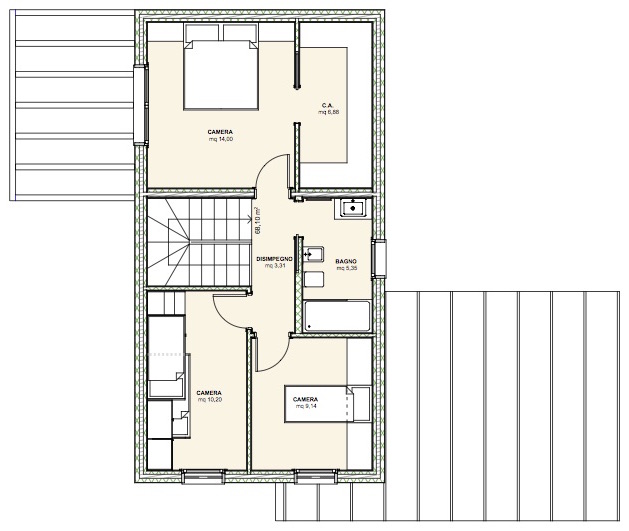
PLANIMETRIE



INFO
L'edificazione del primo edificio chiavi in mano è previsto per ottobre 2015; contestualmente sarà realizzato un secondo edificio con la formula del grezzo stato avanzato.
Il secondo blocco sarà realizzato a vendita conclusa della prima bifamiliare.
